Parx Grille

Project overview

Parx Casino’s signature restaurant was envisioned as both a spectacle and a sanctuary—a place where the high energy of the casino meets the refinement of fine dining.

The design plays with drama and detail: sweeping architectural gestures in rich wood finishes, jewel-toned accents, layered custom materials, and a vibrant art collection set the stage. A sculptural red lacquered portal and a series of bespoke lighting installations create a sense of theater, while color-shifting fixtures allow the atmosphere to evolve from day to night.

Textures, patterns, and light are choreographed to deliver a dining experience that is as dynamic as it is welcoming. The result is a centerpiece of the property, celebrated with the IIDA Philadelphia People’s Choice Award for its innovation and artistry.

Role

As Senior Project Interior Designer, I led the design team from concept through documentation, guiding the vision toward a bold yet approachable expression. I collaborated closely with the client, artisans, and fabricators to craft bespoke details—from custom lighting to layered finishes—that give the restaurant its distinct identity. My role centered on ensuring every design move contributed to both performance and spectacle, delivering a restaurant that resonates with both casino energy and fine-dining sophistication.

Details

Area of site

5000 ft2

Date

2009

Status of the project

Completed Construction

Tools used

Autocad, Sketchup, InDesign, Photoshop

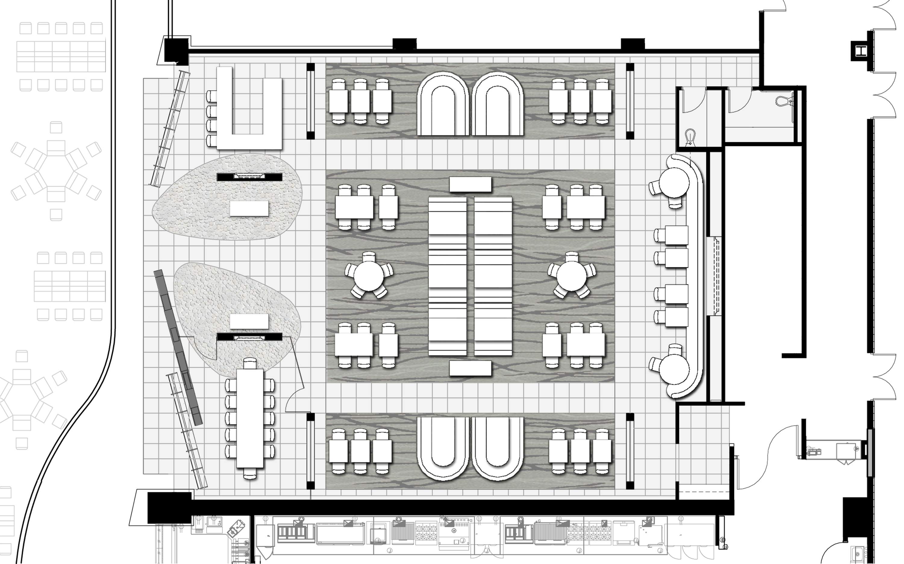
Layout

The layout of this restaurant is about balance, creating a sense of arrival, building focal points, and cultivating efficiency. The plan hosts 135 seats within the dining area. The entry walls were intentionally angled to create a view of the restaurant from the casino floor and served as a landing spot for the custom glass artwork. The focal point in the space was the backlit onyx wall with an integrated digital fireplace. All these elements together created a space with flow, beauty, purpose, and comfort.